Lượt xem: 1049
Xây dựng biệt thự tân cổ điển 2 tầng là xu hướng ngày càng được nhiều chủ nhà quan tâm đến. Mẫu thiết kế này mang lại vẻ đẹp đơn giản theo phong cách truyền thống và pha chút tinh tế của phong cách hiện đại. Hãy cùng XÂY DỰNG SẮC VIỆT HOUSE khám phá những nét độc đáo của biệt thự tân cổ điển 2 tầng qua các thông tin chia sẻ dưới đây, Sửa chữa nhà Sắc Việt, Sắc Việt House,...
Xây dựng biệt thự tân cổ điển 2 tầng là xu hướng ngày càng được nhiều chủ nhà quan tâm đến. Mẫu thiết kế này mang lại vẻ đẹp đơn giản theo phong cách truyền thống và pha chút tinh tế của phong cách hiện đại. Hãy cùng XÂY DỰNG SẮC VIỆT HOUSE khám phá những nét độc đáo của biệt thự tân cổ điển 2 tầng qua các thông tin chia sẻ dưới đây.
Nét độc đáo của Biệt thự Tân cổ điển 2 tầng
Yếu tố chính tạo nên nét độc đáo của mẫu thiết kế biệt thự tân cổ điển 2 tầng đó là sự kết hợp tuyệt vời giữa hai phong cách cổ điển và hiện đại. Chính sự kết hợp này đã mang lại vẻ đẹp sang trọng, đẳng cấp nhưng vẫn vô cùng tinh tế. Đồng thời, phong cách tân cổ điển còn thể hiện rõ sở thích thiết kế kiến trúc cũng như làm tôn lên vẻ uy quyền cho gia chủ.
Mặt tiền đơn giản và nhẹ nhàng
Điều đặc biệt ở đây chính là mặt tiền luôn được sử dụng các chi tiết đơn giản, nhẹ nhàng nhưng riêng phần trang trí lại rất cẩn thận, tỉ mỉ từng đường nét. Điều này giúp cho biệt thự càng thêm nổi bật, thu hút và ấn tượng hơn.
Tạo điểm nhấn với một vài chi tiết
Ở mẫu thiết kế biệt thự tân cổ điển 2 tầng này, các kiến trúc sư không sử dụng những đường nét hoa văn cầu kỳ, mà thay vào đó là một số chi tiết đặc biệt để tạo thêm điểm nhấn cho công trình.
Nhìn chung, phong cách của biệt thự tân cổ điển 2 tầng là sự phối hợp những thiết kế kiến trúc từ thời xa xưa với các đường nét hiện đại, tạo ra sự hoàn mỹ.
Kinh nghiệm Thiết kế Xây dựng Biệt thự 2 tầng Tân cổ điển
Một số kinh nghiệm sau đây từ XÂY DỰNG SẮC VIỆT HOUSE sẽ giúp bạn chuẩn bị tốt cho việc thiết kế xây dựng biệt thự tân cổ điển 2 tầng cho gia đình mình.
Xác định tiềm lực tài chính của gia đình
Tài chính là yếu tố quan trọng quyết định đến việc thiết kế toàn bộ ngôi nhà. Để tạo ra không gian sống đẳng cấp và thẩm mỹ, bạn nên tính toán các chi phí xây dựng sao cho phù hợp với kinh tế của gia đình.
Ngoài ra, cũng nên chuẩn bị thêm các chi phí phát sinh, tránh trường hợp thiếu hoặc thừa các vật liệu. Điều này cũng để giúp việc thiết kế xây dựng được suôn sẻ và thuận lợi.
Lựa chọn diện tích phù hợp
Việc chọn ra diện tích xây dựng biệt thự tân cổ điển 2 tầng rất quan trọng. Khi đã xác định được diện tích, bạn có thể dễ dàng tính toán và phân chia phòng trong từng tầng và các khu vực hợp lý nhất.
Việc xác định diện tích cũng giúp bạn tránh tình trạng thừa hay thiếu diện tích sinh hoạt, tạo ra một ngôi biệt thự đẹp, thẩm mỹ, đúng chuẩn với phong cách tân cổ điển.
Không chỉ có vậy, xác định diện tích còn đảm bảo cho công năng sử dụng tốt nhất. Điều này giúp mang lại không gian sống thoải mái, tiện nghi cho các thành viên trong gia đình.
Màu sắc chủ đạo cho căn biệt thự tân cổ điển 2 tầng
Màu sắc ảnh hưởng trực tiếp đến tính thẩm mỹ của toàn bộ không gian biệt thự.
Phong cách tân cổ điển là sự kết hợp giữa truyền thống và hiện đại, chính vì vậy bạn nên chọn màu sắc sao cho phù hợp. Làm sao để kết hợp hài hòa giữa các màu sắc và tạo nên ấn tượng riêng cho ngôi nhà.
Yếu tố phong thủy
Khi xây dựng nhà cửa, biệt thự tân cổ điển 2 tầng, yếu tố phong thủy luôn được đặt lên hàng đầu. Bởi căn nhà có phong thủy phù hợp sẽ đem lại may mắn, thịnh vượng cho gia chủ. Vì vậy, bạn hãy tìm hiểu kỹ càng xem căn biệt thự có đang được xây dựng theo đúng phong thủy không. Làm tốt được điều này sẽ mang lại những điều tốt đẹp nhất cho gia đình mình.
THIẾT KẾ BIỆT THỰ TÂN CỔ ĐIỂN PHÁP 3 TẦNG SIÊU ĐẸP TẠI HẠ LONG
Kiến trúc Pháp hiện đại đã và đang chiếm được nhiều cảm tình của chủ đầu tư. Thiết kế kiến trúc có sức hấp dẫn từ hình khối, mặt tiền cho đến không gian nội thất hiện đại. Mẫu biệt thự tân cổ điển pháp mà chúng tôi giới thiệu trong phạm vi bài viết này, chính là minh chứng rõ nét cho những nhận xét trên.
Không thể phủ nhận kiến trúc Pháp từ khi du nhập vào Việt Nam, đã tạo nên một làn gió mới trong xu hướng thiết kế kiến trúc đương đại. Mặc dù có kinh phí đầu tư cao hơn kiến trúc hiện đại, thời gian thi công lâu hơn, tuy nhiên sức hấp dẫn của nó chưa bao giờ hạ nhiệt.
- Thông tin công trình biệt thự tân cổ điển pháp:
- Chủ đầu tư: Mr.Thành
- Địa điểm: Hạ Long - Quảng Ninh
- Năm thiết kế: 2019
- KTS: Trần Doanh Nhân
- Diện tích Thiết kế: 180m2
- Công trình: Biệt thự tân cổ điển
- Số tầng: 03
- Kinh phí đầu tư: 3,9 tỷ
- Công năng: 3 phòng ngủ, phòng khách, phòng bếp, phòng thờ
Yêu cầu Tư vấn mẫu Biệt thự Tân cổ điển
- Mr.Thành tìm đến văn phòng Công ty XÂY DỰNG SẮC VIỆT HOUSE với yêu cầu và mong muốn cụ thể về công trình của gia đình mình như sau:
Gia định dự định xây mẫu biệt thự 3 tầng kiến trúc tân cổ điển Pháp với diện tích 180m2/sàn
Thiết kế và bố trí 3 phòng ngủ, phòng khách, phòng bếp, phòng thờ
Phối cảnh mặt tiền thể hiện sức hút lớn với màu sắc trang nhã, hình khối kiên cố và vững chắc. Hệ thống tường rào bao quanh thiết kế đồng bộ với cảnh quan và phối cảnh chung của công trình.
- Tổng kinh phí đầu tư cho công trình không vượt quá 3.9 tỷ Đồng
Hệ thống cửa chính lắp đặt cho mẫu nhà là cửa nhôm Xingfa màu nâu đen, cách âm, cách nhiệt và chống oxy hoá tốt
Sau 1 tháng sẽ phải có 3 phương án thiết kế sơ bộ để gia đình lựa chọn, sau đó sẽ chốt một phương án tối ưu nhất. Sau khi chốt phương án, 2 tuần sau kiên trúc sẽ bảo vệ phương án lần 2 với chủ đầu tư. Nếu không có chỉnh sửa gì, Anh chị sẽ chốt phương án cuối, hoàn thiện hồ sơ thiết kế 3D.
Sau khi có hồ sơ thiết kế 3D, anh chị yêu cầu chúng tôi bóc tác dự toán từng hạng mục thi công xây dựng, điện nước, mặt bằng nội thất…
Tiến độ thi công dự định của công trình sẽ là giữa năm âm lịch năm 2025

Khám phá và chiêm ngưỡng mẫu biệt thự tân cổ điển
Hình khối mẫu biệt thự không quá đồ sộ như những toà lâu đài lớn, tuy nhiên thể hiện sự sang trọng, bề thế và vô cùng kiên cố.
Hệ thống trụ cột không vận dụng thức cột tròn ionic như thường thấy trong kiến trúc tân cổ điển truyền thống, kiến trúc sư sử dụng hệ thống trụ cột vuông là chủ yếu. Hệ thống trụ cột được thiết kế ốp sát vào tường, phần chân cột và đầu cột đổ khối nhô ra cùng với hệ đường gờ chỉ đẹp mặt thể hiện sự tinh tế với những nét mềm mại và quyến rũ.
Thức cột ionic duy nhất xuất hiện trong công trình chính là trên tầng thượng, đi cùng với khối lam bê tông màu ghi xám với hệ cây hoa leo, mang đến không gian sống có tính thẩm mĩ cao.
Hệ thống tường rào bao quanh công trình kiên cố, thiết kế vững chắc và bền vững với những khối mảng tường lớn. Hệ thống cửa cổng chính cùng với hệ thống lan can ban công sử dụng duy nhất chất liệu sắt phun sơn tĩnh điện, với những dường uốn cong và khối vòm ban công trên tầng 2, càng tô điểm thêm những nét tinh tế trên tông màu nền nã của mẫu nhà 3 tầng mang đặc trưng của kiến trúc Pháp.
Với tông sơn ngoại thất được lựa chọn là màu trắng và màu be, thể hiện dấu nét đặc trưng trong kiến trúc Pháp hiện đại. Kiến trúc sư đã khéo léo xử lý hệ thống cửa chính, cửa sổ của mẫu biệt thự tân cổ điển pháp với hệ thống cửa nhôm Xingfa màu nâu cà phê có chia đố. Sự đồng bộ trong tông màu này hoà cùng với gam màu trắng đang mang đến sức hút khác biệt và mãnh liệt chỉ có ở mẫu biệt thự Pháp hiện đại.
Kiên cố, bề thế, sang trọng và tinh tế, đẳng cấp không gian sống không nằm ở quy mô hay tổng số tiền đầu tư, nó nằm ở sức hút toát ra từ mẫu thiết kế nhà.
Hệ thống mái thái màu nâu đen thiết kế khối mái chữ A cao ráo cùng với khối đua vừa phải, ôm trọn thân tường. Nổi bật và nhẹ nhàng trên ngoại thất sáng, cùng với hình khối kiên cố và bố cục mảng tường khoa học, tạo nên sự cuốn hút đồng bộ hơn cho mẫu biệt thự đẹp.
Mặt bằng công năng mẫu Biệt thự 3 tầng Kiến trúc Pháp

Mặt bằng tầng 1 mẫu biệt thự 3 tầng Kiến trúc Tân cổ điển pháp
Mặt bằng công năng mẫu biệt thự tân cổ điển được bố trí hài hoà, giữa công năng sử dụng và cảnh quan thiên nhiên. Từ khoảng sân trước bước vào trong chính là phòng khách, bố trí chính diện ngay cạnh cửa chính. Không gian phòng khách kết nối với sảnh thang trung tâm, kết nối các không gian lại với nhau. Từ phòng khách hướng về phía tay trái là phòng bếp hiện đại, thiết kế dạng bếp bar. Dưới chân cầu thang,tận dụng thiết kế một nhà vệ sinh nhỏ và một kho chưa đồ của gia đình. Hướng sang tay trái là phòng ngủ 1 có thiết kế nhà vệ sinh và phòng thay đồ, thiết ké thoáng hướng trực diện ra sân. Phòng làm việc được bố trí cạnh phòng khách, thiết kế có cửa sổ hướng ra sân trước.

Mặt bằng tầng 2 mẫu biệt thự 3 tầng kiến trúc tân cổ điển pháp
Tầng 2 thiết kế 3 phòng ngủ, phòng ngủ master thiết kế hướng ra ban công trước, có thiết kế nhà tắm rộng và thoáng cùng với phòng thay đồ. Phòng ngủ chính thiết kế cạnh phòng sinh hoạt chung gần với khoảng không sảnh thang thông tầng. Phía bên kia bố trí 2 phòng ngủ nhỏ có nhà vệ sinh khép kín, hệ thống cửa sổ nhôm kinh hiện đại, giúp đón sáng, đón thoáng và hạn chế tiếng ồn khá tốt cho mẫu nhà đẹp.

.png)
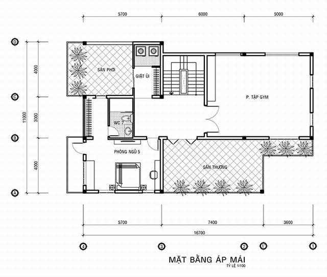
Mặt bằng tầng 3 mẫu biệt thự 3 tầng kiến trúc tân cổ điển pháp
Tầng 3 thiết kế 1 phòng ngủ cho người giúp việc, thiết kế phòng tập gym gần khoảng sân thượng khá rộng và thoáng. Phòng giặt ủi thiết kế gần với sân phơi, tiếp giáp sảnh thang gần sân thượng, tạo nên hướng đối lưu đón gió và nắng tốt.
Chủ đầu tư hoàn toàn bị chinh phục về mẫu thiết kế biệt thự kiến trúc pháp tân cổ điển. Hãy liên hệ với chúng tôi nếu như bạn hài lòng và ấn tượng với mẫu thiết kế này nhé.
MỌI THÔNG TIN CHI TIẾT QUÝ KHÁCH VUI LÒNG LIÊN HỆ:
CÔNG TY TM XÂY DỰNG SẮC VIỆT
Số điện thoại: 0705 790068
Email: hotro.sacviet@gmail.com
Website: www.suanhasacviet.vn
Sửa chữa nhà Sắc Việt, Sắc Việt House, Xây dựng Sắc Việt, Thiết kế Thi công nhà ở, Thiết kế thi công showroom trung bày, thiết kế thi công cửa hàng, thiết kế thi công nhà phố, thiết kế thi công biệt thự, thiết kế thi công khách sạn, thiết kế thi công resort, thiết kế thi công homestay, thiết kế thi công quán ca phê, thiết kế thi công quán coffee, thiết kế thi công quán trà sữa, thiết kế thi công nhà hàng, thiết kế thi công cửa hàng, thiết kế thi công sữa chữa cải tạo nhà, sửa chữa cải tạo nhà uy tín tphcm, thiết kế thi công nhà lắp ghép, thi công nhà bê tông nhẹ, bê tông nhẹ, bê tông panel, panel bê tông nhẹ, thiết kế thi công cải tạo nhà, thi công sửa chữa nhà ở, sửa nhà uy tín sài gòn, xây dựng sắc việt, sữa chữa điện nước, chống thấm mái nhà, chống thấm toilet, chống thấm WC, chống thấm tường, chống thấm sân thượng, chống thấm sàn mái, chống thấm vách nhà, chống nóng mái tôn cách nhiệt, cách nhiệt cát tường, chống nóng sàn mái, sàn bê tông nhẹ, thiết kế thi công nhà lắp ghép, sửa chữa nhà gần đây, cải tạo nhà gần đây, sửa nhà uy tín sài gòn gần đây, thi công coffee sân vườn, thi công tiểu cảnh sân vườn, thiết kế thi công văn phòng chuyên nghiệp, thiết kế thi công khách sạn chuẩn quốc tế, thiết kế thi công bar club, thiết kế thi công spa ấn tượng chuyên nghiệp